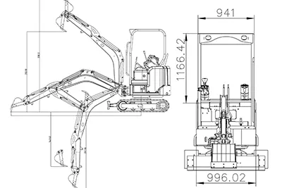
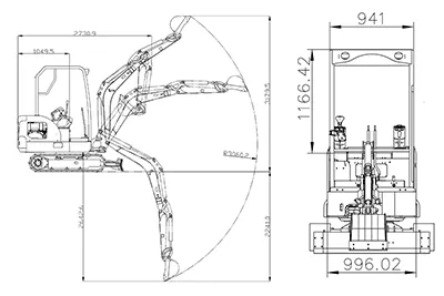
Excavadora eléctrica sobre orugas KE20/25
Excavadora eléctrica compacta de 2000 kg, ofrece un rendimiento eficiente y sin emisiones en espacios reducidos
- Capacidad del cucharón (cuchara)
0.035m³ - Ancho del chasis
1100-1400mm - Longitud de la oruga
1500mm - Capacidad de ascenso
40°


























