Excavadora eléctrica sobre orugas KE12/12 Plus
Excavadora eléctrica compacta de 1000 kg, perfecta para un trabajo eficiente y sin emisiones
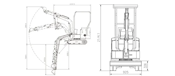
- Capacidad del cucharón (cuchara)
0.025m³ - Ancho del chasis
930mm - Longitud de la oruga
1250mm - Capacidad de ascenso
40°



















