Minicargadora eléctrica ST3090EV
Minicargadora eléctrica sobre ruedas capaz de trabajar hasta 8 horas con una sola carga
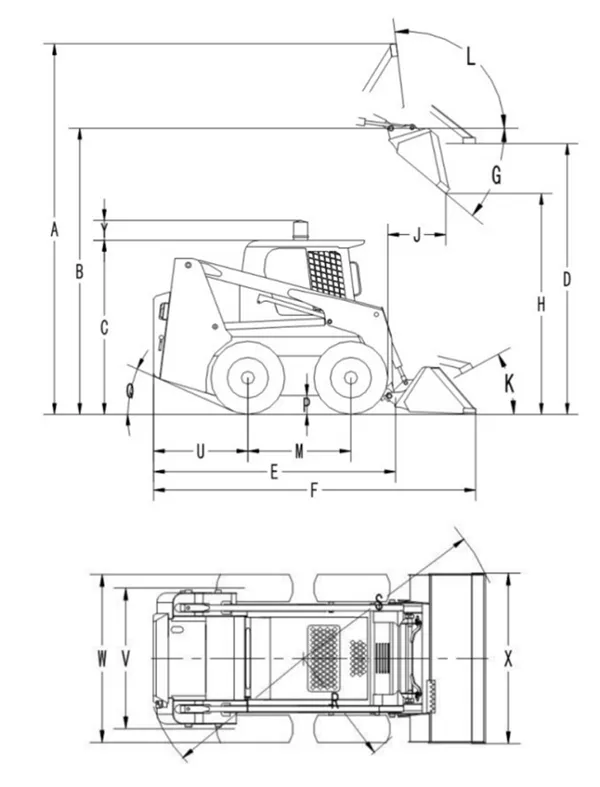
- Capacidad nominal del cucharón (cuchara)
0.5m³ - Peso operativo
3500kg - Velocidad de desplazamiento
14km/h - Carga nominal
1000kg
- La batería de gran autonomía permite trabajar entre 6 y 8 horas seguidas por carga, garantizando un rendimiento constante durante toda la jornada
- Su sistema de potencia combina cuatro motores de tracción de 12 kW con un conjunto hidráulico de 30 kW, logrando una operación fluida, eficiente y con excelente capacidad de respuesta
- Con una carga nominal de 1000 kg y una cuchara de 0,5 m³, ofrece un desempeño sobresaliente en la manipulación de materiales, incluso en espacios reducidos o de difícil acceso

























