Minicargadora sobre ruedas JC25
Minicargadora de ruedas con capacidad de 380 kg, ideal para demolición de carreteras y remoción de nieve en espacios reducidos
- Peso operativo
1460kg - Carga nominal
380kg - Capacidad nominal del cucharón (cuchara)
0.2m³ - Velocidad máxima
9km/h
- Diseño compacto: Con una ancho de solo 920 mm y un radio de giro mínimo de 960 mm, permite maniobrar con gran flexibilidad y eficiencia en espacios reducidos.
- Potencia confiable: Su motor Kubota D1105 de 18,2 kW a 3000 rpm ofrece un rendimiento estable y un bajo consumo de combustible.
- Alta capacidad de carga: Con una carga nominal de 380 kg, una capacidad de cuchara de 0.2 m³ y una fuerza de arranque máxima de ≥7.3 kN, asegura un trabajo rápido y eficiente.
- Sistema de acoplamiento rápido: Compatible con diversos implementos como martillos hidráulicos, barredoras, pinzas y palas quitanieve, lo que brinda gran versatilidad para distintas aplicaciones.
- Excelente maniobrabilidad: Gracias a su distancia entre ejes de 801 mm y un ángulo de aproximación de 13°, se adapta fácilmente al terreno y garantiza un funcionamiento suave.
Especificaciones
| Modelo | JC25 |
| Peso operativo | 1460 kg |
| Carga nominal | 380 kg |
| Capacidad del cucharón | 0.2 m³ |
| Velocidad máx. | 9 km/h |
| Tracción máx. | ≥12 kN |
| Fuerza máx. de arranque | ≥7.3 kN |
| Tiempo de elevación de la pluma | 7 s |
Motor
| Fabricante | Kubota |
| Modelo | D1105 |
| Potencia nominal | 18.2 kW / 3000 rpm |
| Cilindrada del motor | 1.123 L |
| Norma de emisiones | Euro V/EPA4 |
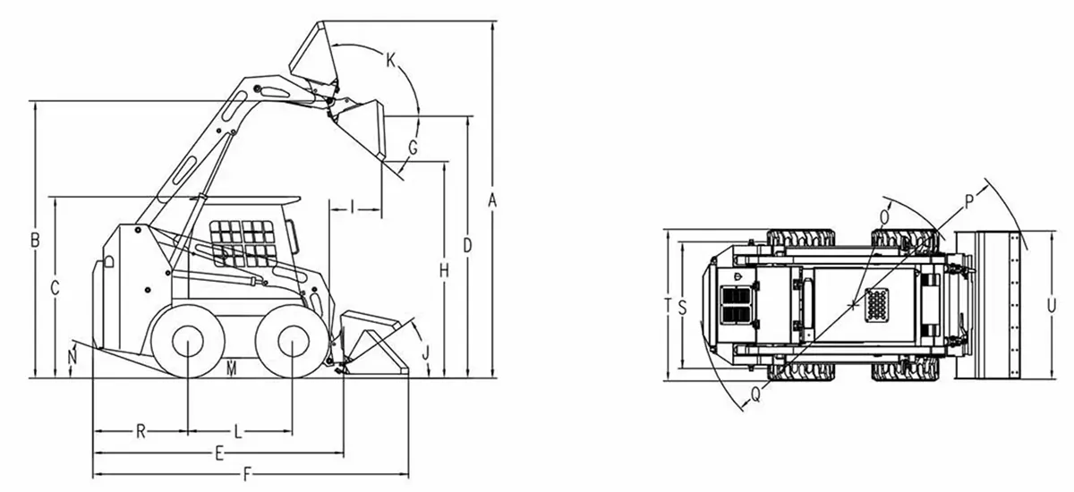
Dimensiones
| A | Altura operativa total | 3400 mm |
| B | Altura al pasador del cucharón | 2500 mm |
| C | Altura hasta la parte superior de la cabina | 1813 mm |
| D | Altura al fondo del cucharón nivelado | 2446 mm |
| E | Longitud total sin cucharón | 2200 mm |
| F | Longitud total con cucharón | 2950 mm |
| G | Ángulo de vuelco / descarga a altura máxima | 40° |
| H | Altura de descarga / vuelco | 2000 mm |
| I | Alacnce de descarga | 441 mm |
| J | Ángulo de retroceso del cucharón en el suelo | 30° |
| K | Ángulo de retroceso del cucharón a altura máx. | 103° |
| L | Distancia entre ejes | 801 mm |
| M | Distancia al suelo | 145 mm |
| N | Ángulo de salida | 20° |
| O | Radio de giro delantero sin cucharón | 960 mm |
| P | Radio de giro delantero | 1660 mm |
| Q | Radio de giro trasero | 1253 mm |
| R | Distancia del eje trasero al parachoques | 910 mm |
| S | Ancho de vía | 785 mm |
| T | Ancho | 920 mm |
| U | Ancho del cucharón | 1070 mm |
Accesorios opcionales
Cucharón estándar
Cucharón profundo
Cucharón cribador
Acople rápido
Horquilla para palets
Barrena
Pala quitanieve
Pinza para troncos
Manipulador de pacas redondas
Manipulador de pacas cuadradas
Segadora de martillos
Pluma de elevación / accesorio de grúa
¿Qué cargadora sobre ruedas es adecuada para espacios reducidos y zonas con exigencias ambientales?
¿Qué cargadora sobre ruedas es adecuada para espacios reducidos y zonas con exigencias ambientales?
La cargadora sobre ruedas eléctrica es adecuada para espacios confinados. Su diseño compacto, radio de giro reducido y tracción eléctrica con batería de litio permiten operación silenciosa y sin emisiones en entornos urbanos, plantas industriales y áreas agrícolas.
¿Qué cargadora sobre ruedas se recomienda para minería y trabajos de gran volumen?
¿Qué cargadora sobre ruedas se recomienda para minería y trabajos de gran volumen?
La cargadora sobre ruedas diésel para servicio pesado está diseñada para operaciones intensivas. Su gran capacidad de cucharón y amplia altura de descarga permiten una gestión eficiente de materiales en minería y canteras.
¿Qué cargadora sobre ruedas es adecuada para operaciones forestales y manejo de troncos?
¿Qué cargadora sobre ruedas es adecuada para operaciones forestales y manejo de troncos?
La cargadora sobre ruedasdiésel para manejo de madera está equipada con pinzas reforzadas y brazos diseñados para troncos de gran diámetro. Su sistema de transmisión robusto garantiza estabilidad y resistencia a sobrecargas.
¿Puede una cargadora sobre ruedas para bloques operar en terrenos irregulares?
¿Puede una cargadora sobre ruedas para bloques operar en terrenos irregulares?
Sí. La cargadora sobre ruedasdiésel para manejo de bloques cuenta con tracción en las cuatro ruedas, alto despeje del suelo y estructura reforzada, lo que garantiza estabilidad en superficies irregulares.









